首页 > 新闻 > 正文
上海现代建筑设计(集团)有限公司(宅基地宽8米,深14米,两面采光临街,一楼店面,楼上套房,该怎么设计)

 2022-09-07 12:47  阅读 15

摘要:你好,专业从事乡村自建房设计的住宅公园来回答。宅基地面宽8m,进深14m,这个空间在农村是比较常见的,但题目中楼主提到两面采光且临街,一楼设计成店面,二楼以上设计成套房

你好,专业从事乡村自建房设计的住宅公园来回答。宅基地面宽8m,进深14m,这个空间在农村是比较常见的,但题目中楼主提到两面采光且临街,一楼设计成店面,二楼以上设计成套房。建议楼主做专业定制,也欢迎您向我们咨询。在这里为您分享两套与您家宅基地比较相符但没有带商铺的户型,希望对您建房有帮助。

第一套

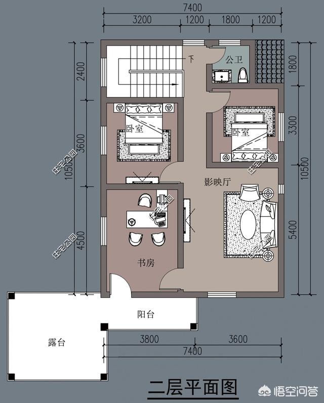
占地尺寸:7.4m×14.1m

占地面积:104㎡

建筑层数:2层

建筑布局情况:4卧室、1客厅、1影映厅、1餐厅、1厨房、2卫生间、1车库、1露台

农村自建房,一般都会考虑到经济实用,所以很多家庭都会选择建两层,一层供父母住,二楼供自己和子女住。先看看一层,因为占地不大,所以要充分考虑到合理利用每个空间,整个一层下来没有浪费任何面积。

再看看二层,二层主要为休息区和影映厅,非常符合农村生活习惯。

第二套

占地尺寸:7.8m×15m

占地面积:117㎡

建筑层数:3层

建筑布局情况:5卧室、2书房、1儿童房、1客厅、1餐厅、2起居休闲室、1厨房、5卫生间、1前院、1后院、2阳台、2露台

首先看看一层,虽然尺寸很紧凑,但布局却非常精巧,功能不仅齐全,还设有一个后院,这么小的面积还能有个小院,可以说是很幸福了。

再来看看二层,二层主要为休息区,这套户型的独特之处就在于,它的一面墙没有开窗,所以在采光上也非常有讲究。

第三层为阁楼层,农村有很多地方都喜欢建阁楼,一来是阁楼不仅可以用来堆放东西还可用来做为房间,实用性很高。看看这个阁楼,不仅带有衣帽间还有两个露台,可以说这个在面积利用上做到了极致。

大家说说,这两套户型如何?

关注本号,更多农村自建房图纸。

关键字: 上海 / 现代 / 集团 / 有限公司 / 宅基地 / 建筑设计 / 
钻石量子传感器可更精准监测电动车电池 抖音没有网络可以看吗?抖音离线可以看吗? 防窥膜伤眼睛吗防窥膜会影响视力吗防窥膜原理 平安人寿亲子嘉年华:用户服务升级守护孩子成长 威联通推出新款高速路由器支持10GbE、2.5GbE 如何排查电磁流量计故障-恒大百科 电磁流量计故障处理方法-恒大百科 存安全隐患!宝马扩大召回部分K1600系列摩托车 存安全隐患奔驰召回部分进口S级汽车 宝马、丰田坚守燃料电池技术路线“遥相呼应”中国市场

本站涵盖的内容、图片、视频等模板演示数据,部分未能与原作者取得联系。若涉及版权问题,请及时通知我们并提供相关证明材料,我们将及时予以删除!谢谢大家的理解与支持!


Copyright © 版权所有 | 联系方式:osnev93x5o@gmail.com